Image carousel

  1. The double-story extension expands the living space and adds an extra bedroom with a great view over the landscape, designed by MOST Architecture.
  2. In detail, the fine vertical linework of the wooden facade creates a strong and organic appearance that blends well with nature while still drawing attention, designed by MOST Architecture.
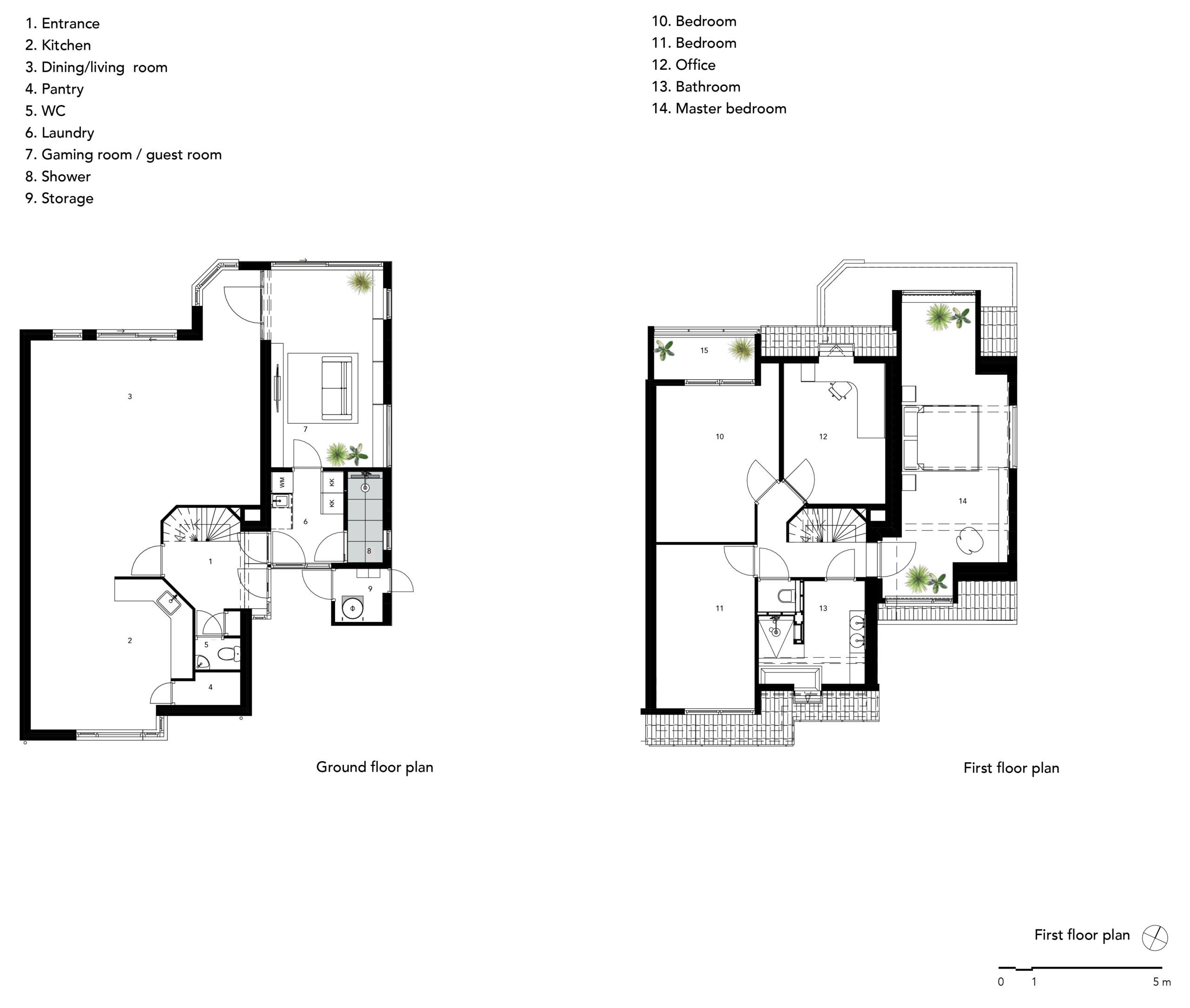
  3. Floor plans for the residential extension in IJsselstein, designed by MOST Architecture.
  4. Elevations for the residential extension in IJsselstein, designed by MOST Architecture.

Project

IJsselstein residence

For this residential project in IJsselstein we were assigned both the renovation of part of the existing house and the design of a double-storey extension to expand its living space and provide an additional bedroom. While adhering to its architectural and historic context in form and proportion, this house extension has a unique character, achieved thanks to its contemporary facade finish and bold architectural detailing.

In order to maximise the affordances provided by its privileged orientation and corner position, the design included a generous triangulated window on the upper floor, that follows the pitched roof shape and allows beautiful views over the adjacent landscape.

Year
2023
Status
Completed
Location
IJsselstein
Size
260 m2
Design team
Paul Geurts, Isacco Angelin, Maciej Krol