Image carousel

  1. Scouting MOST Architecture
  2. Scouting HQ MOST Architecture
  3. Scouting HQ Meeting room MOST Architecture interior design
  4. Site analysis diagrams showing project location, building orientation, views and massing development on the Scouting site designed by MOST Architecture, Rotterdam
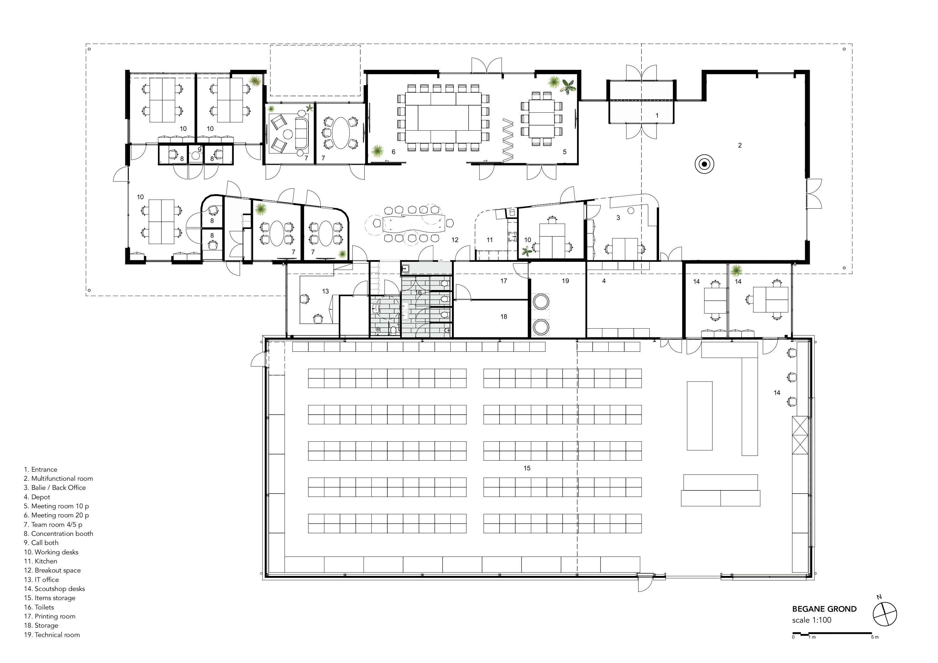
  5. Ground floor site plan showing the preliminary design of the floor plan and the surrounding landscape for Scouting Basecamp. The recess in the floor plan and the façade bring nature close to the building. Careful planting and paving design create outdoor rooms with different character and affordances, including an outdoor amphitheater and a firepit, designed by MOST Architecture, Rotterdam
  6. Sectional axonometric drawing showing an overview of the preliminary design, including the workspace, meeting rooms, exhibition area and storage facilities for the Scouting Basecamp, designed by MOST Architecture.
  7. Aerial view Scouting Headquarters

Project

Scouting Nederland Headquarters

Located along Nulderpad in Zeewolde, the Scouting Basecamp represents the first gateway to the Zeewolde Scouting Estate. Within the wider masterplan, the building marks the entrance to the Scouting Estate, complementing the existing Scouting landmarks and facilities in the area, including the Avonturenhuis, the two Sanitary pavilions and the Centraal Magazijn, adjacent to the site and designed by MOST Architecture in collaboration with TOMDAVID Architecten.
In addition to being an attractive and comfortable work and meeting place, the project serves as a calling card for the entire Scouting organisation on a national level: an inviting and accessible building, modest yet engaging.

Text and image

Responding to the core ethos of the Scouting organisation, the building gives shape to the ambition of working in symbiosis with nature and its ever-changing landscape. The project team was challenged to create a building which accommodates both public and private functions and it is used in several ways at different times of the day. The articulation of the building in two main programmatic zones allows for a clear distinction between public and functional spaces with a different architectural expression.

Careful orientation and spatial organisation allow for generous openings along the office and meeting space, thereby providing optimal daylighting and framing views over the surrounding landscape. Nature is not only visible from afar, but it punctuates the floor plan creating green pockets directly adjacent to the working spaces. Form and materials are carefully designed to create a seamless transition between the building and its surroundings: hempcrete and timber construction anchor the building to the ground while a light timber roof canopy extends its boundary over to its wooded surroundings.

Sectional axonometric drawing showing an overview of the preliminary design, including the workspace, meeting rooms, exhibition area and storage facilities for the Scouting Basecamp, designed by MOST Architecture.
Year
2022
Status
Completed 2024
Location
International Scout Centre Zeewolde, The Netherlands
Size
1185 m2
Client
Scouting Nederland
Design Team
Paul Geurts, Diana Della Pietra in collaboration with TomDavid Architecten, David Baars, Tom van Odijk, Reem Bou Hamdan
Featured on
Architectenweb