Image carousel

Project

Greystar workspace

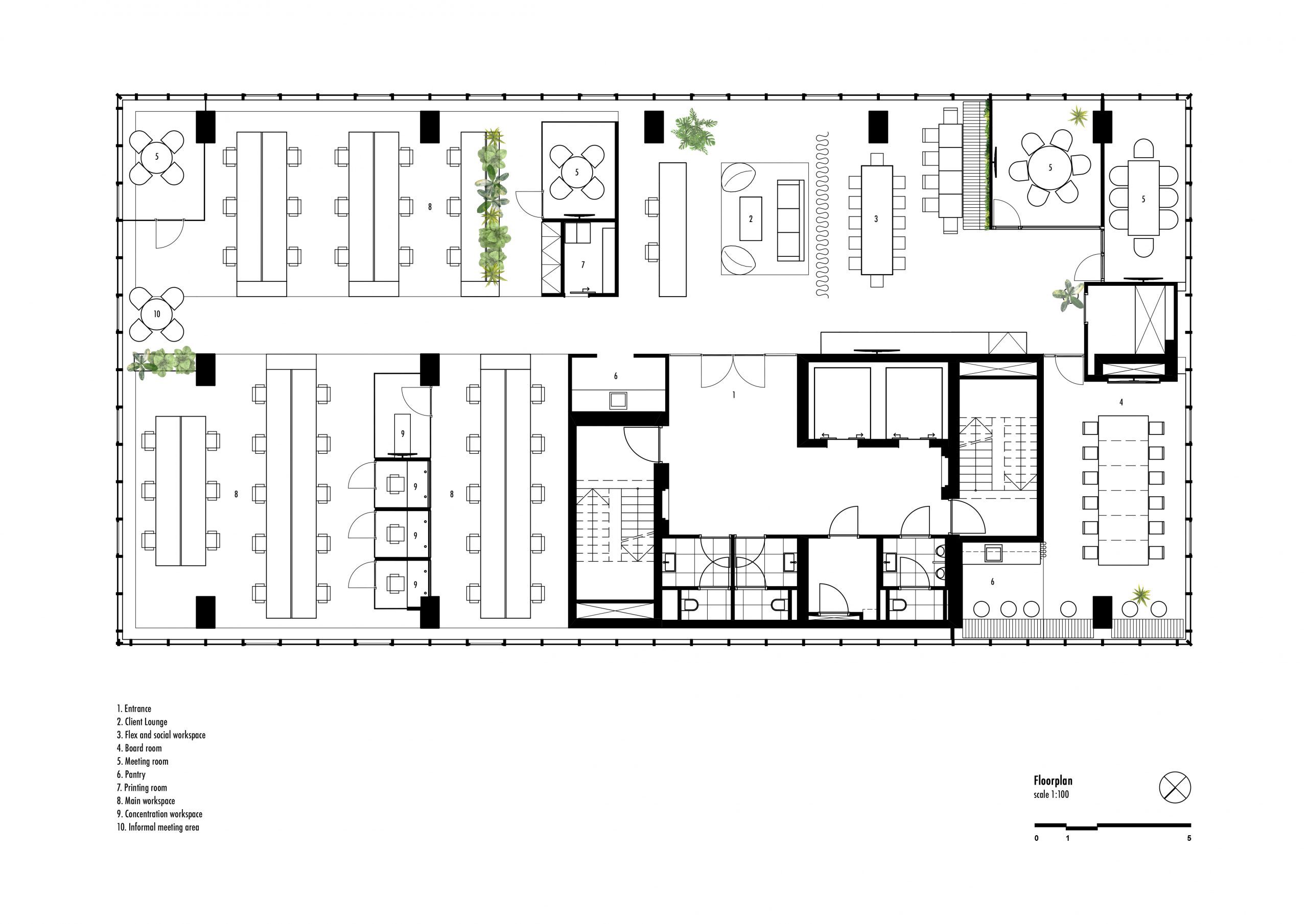
The Greystar Netherlands Office is located right in the heart of the Hague, in a historic and recently renovated tower, the famous New Babylon. This project required the creation of a highly functional and organised open plan office space, with flexible social areas. With approximately 500,000 homes worth 28 billion euros, Greystar is a big name in the real estate market worldwide. The core values of the company, including integrity, accountability and teamwork affected our design deeply.

We created an open plan office, or office landscape, where a certain flexibility is provided for the work flow. With the introduction of different spacial conditions, one can switch work environments throughout the day.

Text and image

Approximately 45 work posts were created for the needs of the company, accompanied by 4 meeting rooms, a large board room, concentration cubicles, as well as informal meeting areas. The main workspace is a contemporary office with plenty of daylight and free movement and is surrounded by concentration cubicles and meeting rooms. The flex & social workspace is used as an area for informal or internal meetings, social interaction and leisure and has very soft boundaries with the client lounge. The later is designed to create a luxurious yet comfortable atmosphere. Additionally, the flex & social workspace along with the lounge area can be used as one, for the company’s social events. The beautiful panoramic view of the city from the 11th floor and the abundance of natural light, also play an important role to the design and aesthetics of the space.

Year
2019
Status
Completed
Location
Den Haag, New Babylon
Size
450 sqm
Client
Greystar
Design team
Paul Geurts, Nina Tsonidi